REGLINE Entwässerungrinnen
1m. Stahlbeton-Entwässerungsrinne AS-300 Typ1 54x60cm C250-F900kN inkl. Gussrost
1m. Stahlbeton-Entwässerungsrinne AS-300 Typ1 54x60cm C250-F900kN inkl. Gussrost
🟢 Auf Lager - sofort lieferbar!
Verfügbarkeit für Abholungen konnte nicht geladen werden
Produktinformationen
Modell: AS-300 Typ1
Farbe: Betongrau
Abdeckgitter: Sphäroguss (KTL-Beschichtet); verschraubt
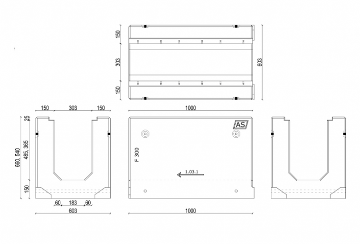
Abmessungen
Länge: 1000 mm
Höhe: 540 mm
Äußere Breite: 603 mm
Innere Breite: 303 mm
Gewicht
Entwässerungsrinne: xxx kg
Abdeckgitter:
Bk C250 kN: kg
Bk C400 kN: kg
Bk D400 kN: kg
Bk E600 kN: kg
Bk F900 kN: kg
Allgemeine Informationen
Die Stahlbeton-Entwässerungsrinnen mit Rost „Typ I“ sind armiert und erfordern kein seitliches Betonieren, sondern nur den Bau von Fundamenten.
Die Entwässerungssysteme bestehen aus Polymerzementbeton der Festigkeitsklasse C55/67.
Das zur Herstellung der verwendeten Elemente ist mit alkalibeständigen Glasfasern verstärkt, was die Biege- und Schlageigenschaften der Wanne deutlich verbessert.
Der Beton zeichnet sich durch eine hohe Beständigkeit gegen Langzeiteinwirkung von Frost und Tausalzen („+R“) gemäß der Norm PN-EN 858-1:2005, aus.
Die Wannenkörper sind mit einer speziellen Aussparung versehen, die eine dichte Verbindung der AS-Entwässerungselemente ermöglicht.
Die aus warmgewalzten, feuerverzinkten Stahlprofilen Stützleisten, sind an den Karosseriewänden verankert. Diese Struktur schützt die Ränder der Wanne und stellt ein solides Element für die Montage der Roste dar.
Die Gitterroste aus Sphäroguss mit KTL-Beschichtung, sind in den Belastungsklassen C250 kN, D400 kN, E600 kN und F900 kN erhältlich.
Die Befestigung der Roste erfolgt mit rostfesten Edelstahlschrauben, die in verzinkte Gewindehülsen der Trägerleisten eingeschraubt werden. Diese Schrauben sorgen dafür, dass die Bewegung des Gitters blockiert wird, wodurch Spiel und „Klicken“ vermieden werden.
Die Installation der Wannen sollte auf einer Betonbank gemäß den Angaben im Katalog erfolgen.
🕒 Lieferzeit: 3-7 Arbeitstage
🚛 Palettenversand: 99,00 EUR
Palettenversand durch Transportunternehmen, Versand erfolgt frei Bordsteinkante
Palettenversand durch Transportunternehmen, Versand erfolgt frei Bordsteinkante
https://geis-group.eu



Belastungsklassen für Rinnen und Abdeckungen DIN EN 1433
A15 - Fußgänger, Radfahrer, Grünflächen
B125 - Fußgänger, Parkplätze, Lieferwagen
C250 - Bordsteine, Seitenstreifen, Parkplätze
D400 - Fahrbahnen, Fußgängerzonen, Parkplätze
E600 - Flächen, die mit hohen Radlasten befahren werden, z. B. Häfen und Dockanlagen.
-
Beton-Entwässerungsrinnen
Wir bieten solide, funktionelle und zugleich ästhetische Lösungen an - unser Angebot umfasst unter anderem Betonrinnen mit gusseisernen oder verzinkten Rosten, die sowohl für Parkplätze, Straßen als auch für Haushöfe oder Garageneinfahrten geeignet sind. Wir laden Sie ein, einen Blick auf unser gesamtes Angebot zu werfen. Wir haben Kanäle aller Belastungsklassen A15, B125, C250, D400, E600.
-
Lieferung nur 99 EUR !
Lieferung nur 99,00 EUR innerhalb Deutschland (ausgenommen Inseln) bei Abnahme einer gesamten Palette (Mengen variieren je nach Produkt).
- Palettenversand durch Transportunternehmen,
Versand erfolgt frei Bordsteinkante. - Versand innerhalb von 24-48 Stunden.
- Lieferung dauert 3 bis 7 Werktage.
- Palettenversand durch Transportunternehmen,